Bureau

Heusy

Avenue de spa, 84
4802 Heusy

àpd 649.000€ *

Simuler mon financement Faire une offre de prix

*Le prix affiché ne contraint pas le vendeur à accepter votre offre.

  • Icône surface

    Surface

    370 m2

  • Icône parking

    Parking

    Non

  • Icône garage

    Garage

    Oui

Descriptif

Ekilibre a le plaisir de vous proposer cet immeuble avenue de Spa n°84 composé de trois appartements, d'un rez-de-chaussée aménagé en bureau et ainsi qu'un garage.
Vous ne pourrez qu'être séduit par les volumes, le cachet de l'immeuble et son emplacement triple A ! Cet immeuble bénéficie d'un immense potentiel et laisse la possibilité à différentes exploitations.
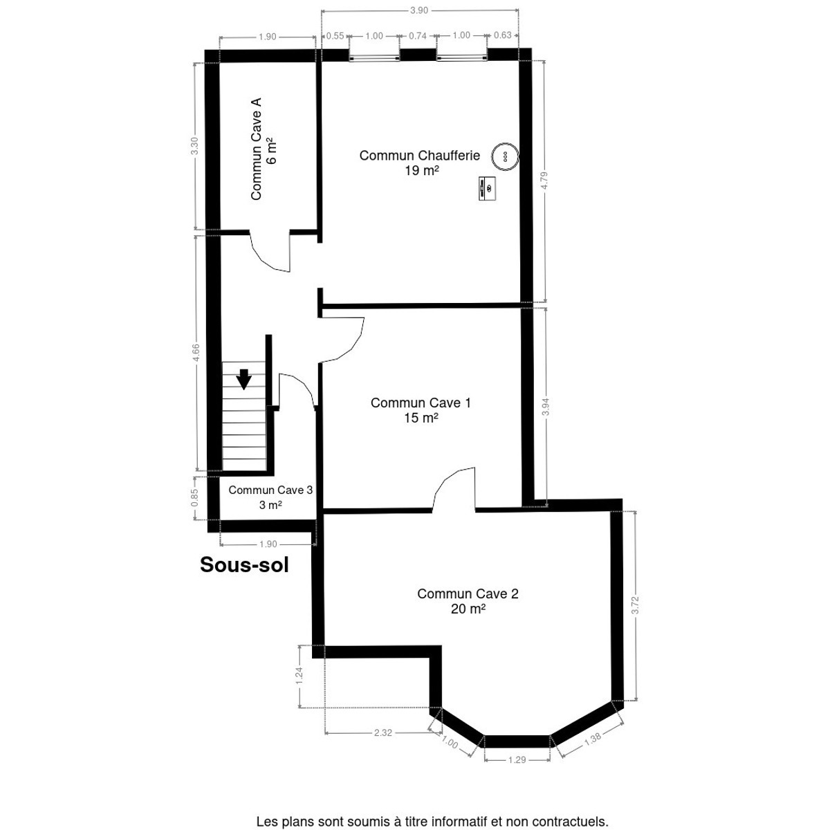
Sa composition : -1 : caves à usage privatif.
Rez-de-chaussée : 134 m² hall d'entrée commun, ensemble de 7 bureaux au rez-de-chaussée. Une salle de bains (wc, baignoire, lavabo) et un garage de 38 m² avec ouverture sur le jardin privé. Un bureau à l'entresol.
Appartement 1er étage : loué 865 euros. 102 m2 composé d'un séjour, une cuisine, deux salles de bains et trois chambres à coucher.
Appartement 2ième étage : loué 650 euros/mois. superficie : 60 m² composé d'une chambre, d'un séjout, d'une cuisine équipée et une salle de douche.
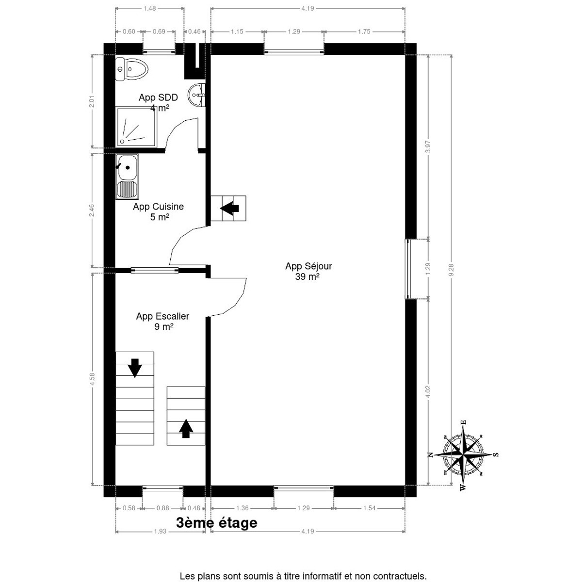
Appartement 3ième étage : 72 m² composé d'un séjour, une cuisine semi-équipée et une salle de douche
Jardin exposé sud-ouest.
TECHNIQUES : châssis PVC et bois double vitrage, chaudière commune récente, électricité non conforme, toiture en bon état.
PEB 1er étage : classe E n°2024073001662 E.spec : 443 kWh/m²/an E.Totale : 45 103 KWh/an
PEB 2ième étage : classe C n°20230504015579 E.Spec : 198 kWh/m².an E.Totale : 11 573 kWh/an
PEB 3ième étage : classe G n°20250611008731 E.spec : 595 kWh/m².an E.totale : 42 956 kWh/an
Informations supplémentaires via info@ekilibre.be ou au 087/31.63.00

Informations générales

  • Meublé

  • Surface habitable

    370m2

  • État

    Bon état

  • Bureau

    Oui

  • Double Vitrage

    Oui

  • Égouts

    Oui

  • Electricité

    Oui

  • Accès à l'eau

    Oui

Surfaces

  • Surface totale

    370 m2

Intérieur

  • Nombre de garage(s)

    1

  • Nombre de cave(s)

    1

Extérieur

  • Orientation du bâtiment

    sud-ouest

  • Nombre d'étages

    1

  • Garage

    1

  • Jardin

    Non

Énergie

  • PEB

    PEB n°20230504015579 - Classe C - E.spec : 198 kWh/m².an - E.Totale : 11573 kWh/an

  • Type de chauffage

    gaz (chau. centr.)

  • Panneaux solaires

    Non

  • Conformité électrique

    oui, non conforme

Infos financières

  • Prix

    649.000 €

  • Sous régime TVA

    Non

  • Disponibilité

    en fonct. du locataire

  • Frais de notaire

    notaire.be

Maëva Schweyen

Agent immobilier agréé

IPI 514.110

Ce bien vous intéresse ?

Maëva se fera un plaisir de vous le faire visiter !

Simulation de votre crédit hypothécaire

5%
250000 €

Récapitulatif

Durée : 20

Taux d'intérêt : 5%

Mensualité estimée : 0 €/mois

Pourquoi nous faire confiance

Votre projet entre des mains expertes

Que vous vendiez, achetiez ou investissiez, notre équipe met tout en œuvre pour vous offrir un accompagnement professionnel, humain et adapté à votre situation.

  • Illustration de l'élément

    Une expertise locale inégalée

    Vous bénéficiez d’une estimation précise et fiable, grâce à notre parfaite connaissance du marché verviétois et notre méthode d’évaluation exclusive.

  • Illustration de l'élément

    Un accompagnement sur-mesure

    Nous prenons en charge chaque étape de votre vente avec rigueur et transparence, en collaboration avec des notaires, pour vous assurer une transaction en toute sérénité.

  • Illustration de l'élément

    Une mise en valeur optimale

    Votre bien mérite le meilleur : photos pro, vidéos drone, home staging et une visibilité maximale pour séduire rapidement les acheteurs.

  • Illustration de l'élément

    Une transparence totale

    Suivez en temps réel chaque visite et retour grâce à votre espace propriétaire. Ici, pas de OFF Market : votre bien est visible par tous pour obtenir la meilleure offre.

Foire aux questions

Tout savoir avant de vous lancer

  • Le certificat PEB est-il obligatoire pour acheter un bien ?

    Oui, le certificat de performance énergétique du bâtiment (PEB) est obligatoire pour toute vente. Il vous informe sur la consommation énergétique du bien et peut influencer vos décisions de rénovation ou vos frais futurs.
  • Quels sont les frais à prévoir lors de l’achat d’un bien immobilier ?

    En plus du prix d’achat, vous devez prévoir : -Les droits d’enregistrement (ou TVA pour un bien neuf) -Les frais de notaire -Les frais de crédit hypothécaire (frais de dossier, acte de prêt) -Les travaux éventuels si le bien n’est pas conforme (électricité, PEB…)
  • Quelles sont les étapes pour acheter un bien immobilier ?

    Nos experts en immobilier vous accompagnent à chacune de ces étapes : 1. Rechercher un bien correspondant à vos critères 2. Visiter et poser les bonnes questions 3. Faire une offre d’achat écrite 4. Signer le compromis de vente 5. Obtenir le crédit 6. Passer chez le notaire pour l’acte authentique

Regard sur l'immobilier

Acheter, vendre, investir : on vous guide

Suivez toute l’actualité immobilière avec Ekilibre : prix du marché, nouvelles lois, conseils pour vendre, acheter ou investir, tendances locales et solutions de financement.

  • Nathalie Palm de l'agence ekilibre à Verviers
    Publié le 31 octobre 2025

    Nouvel impôt sur les plus-values : quel impact sur la vente d’un bien immobilier ?

    Rédigé par Nathalie Palm Administrateur
    Icône bouton
  • Publié le 17 octobre 2025

    Comment mettre en valeur sa maison pour vendre au meilleur prix en 2025 ?

    Rédigé par Nathalie Palm Administrateur
    Icône bouton
  • Mis à jour le 26 août 2025

    De quels documents avez-vous besoin pour vendre votre maison en Wallonie en 2025 ?

    Rédigé par Nathalie Palm Administrateur
    Icône bouton
  • Mis à jour le 13 août 2025

    5 astuces pour vendre rapidement sa maison

    Rédigé par Nathalie Palm Administrateur
    Icône bouton