Récapitulatif
Durée : 20
Taux d'intérêt : 5%
Mensualité estimée : 0 €/mois
Maison
Rue des écoles, 6 4800 Verviers
150.000 €
Simuler mon financement*Le prix affiché ne contraint pas le vendeur à accepter votre offre.
Surface
125 m2
Chambres
4
Parking
Non
Garage
Non
L'agence Ekilibre vous propose cet immeuble de 3 appartements / studio situé au rue des Ecoles n°6 à Verviers.
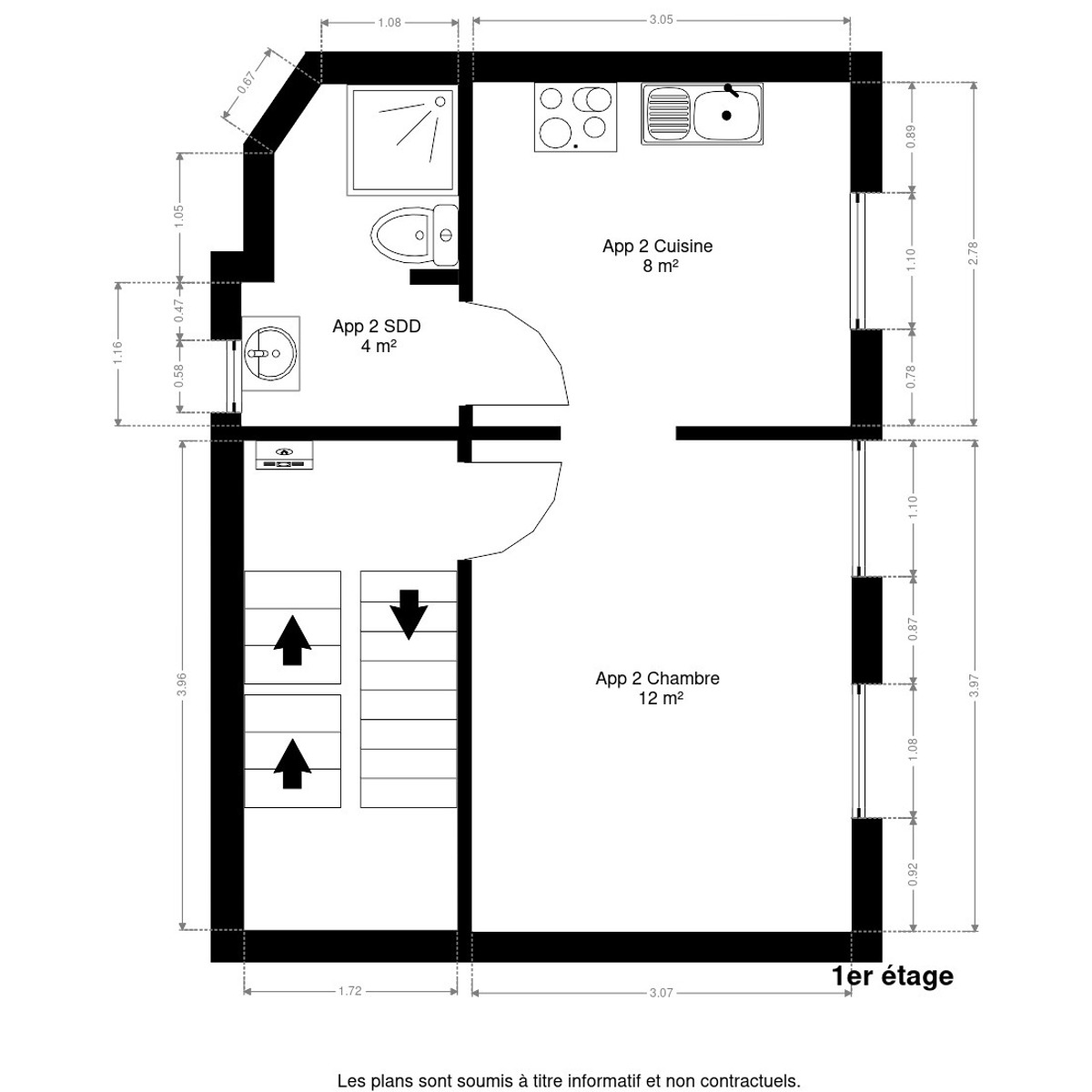
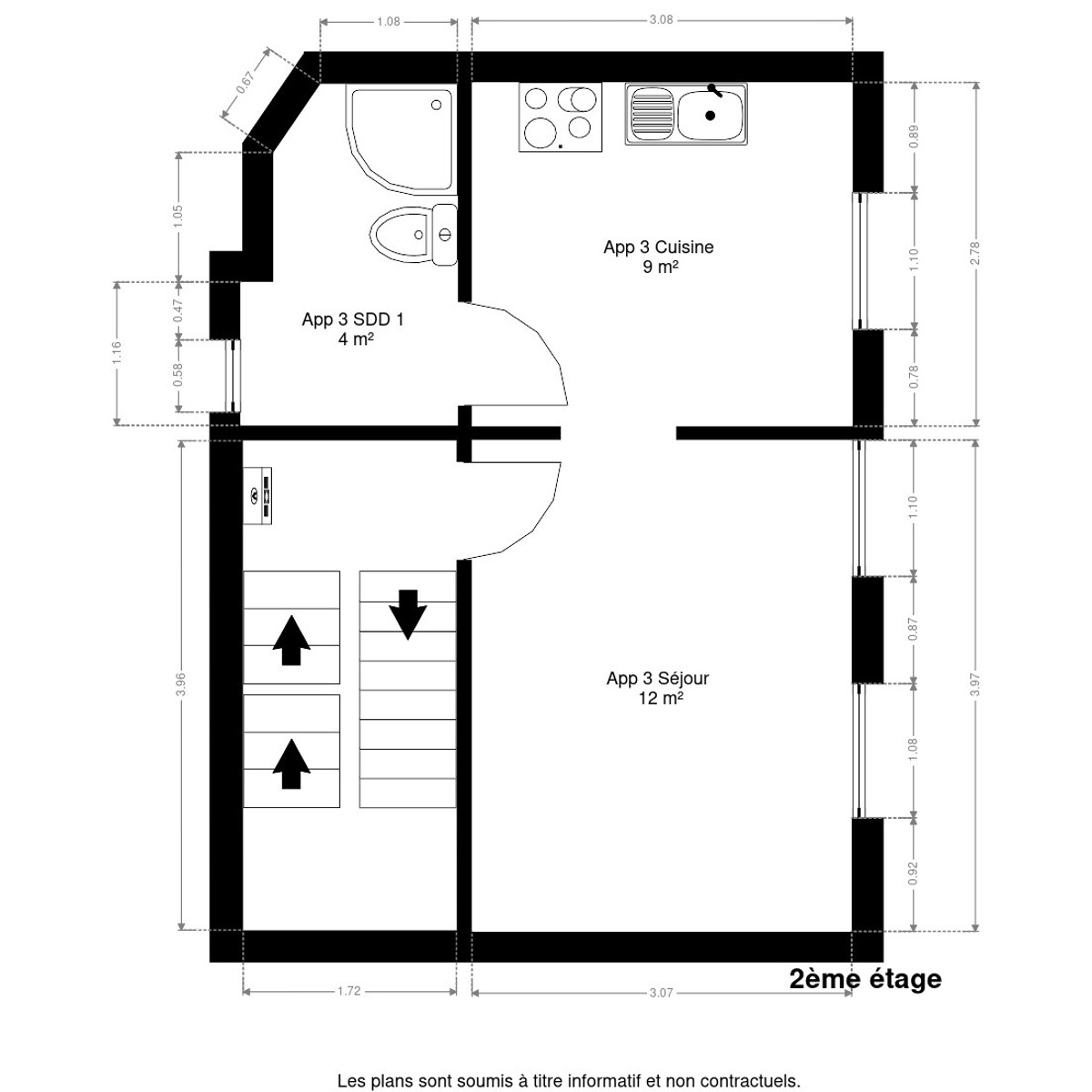
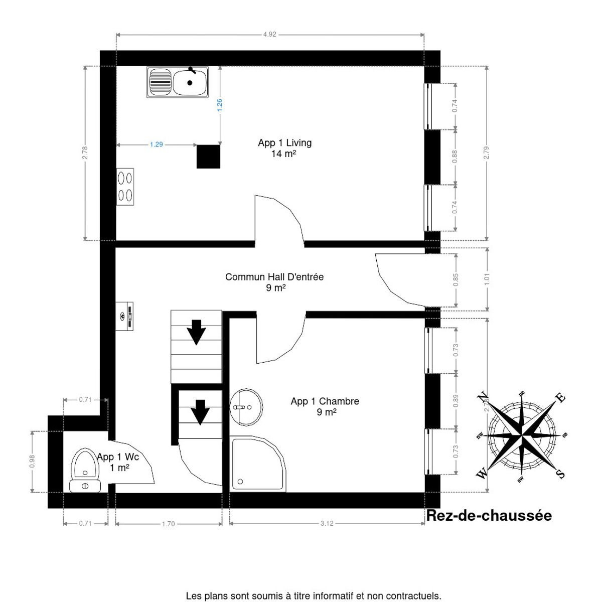
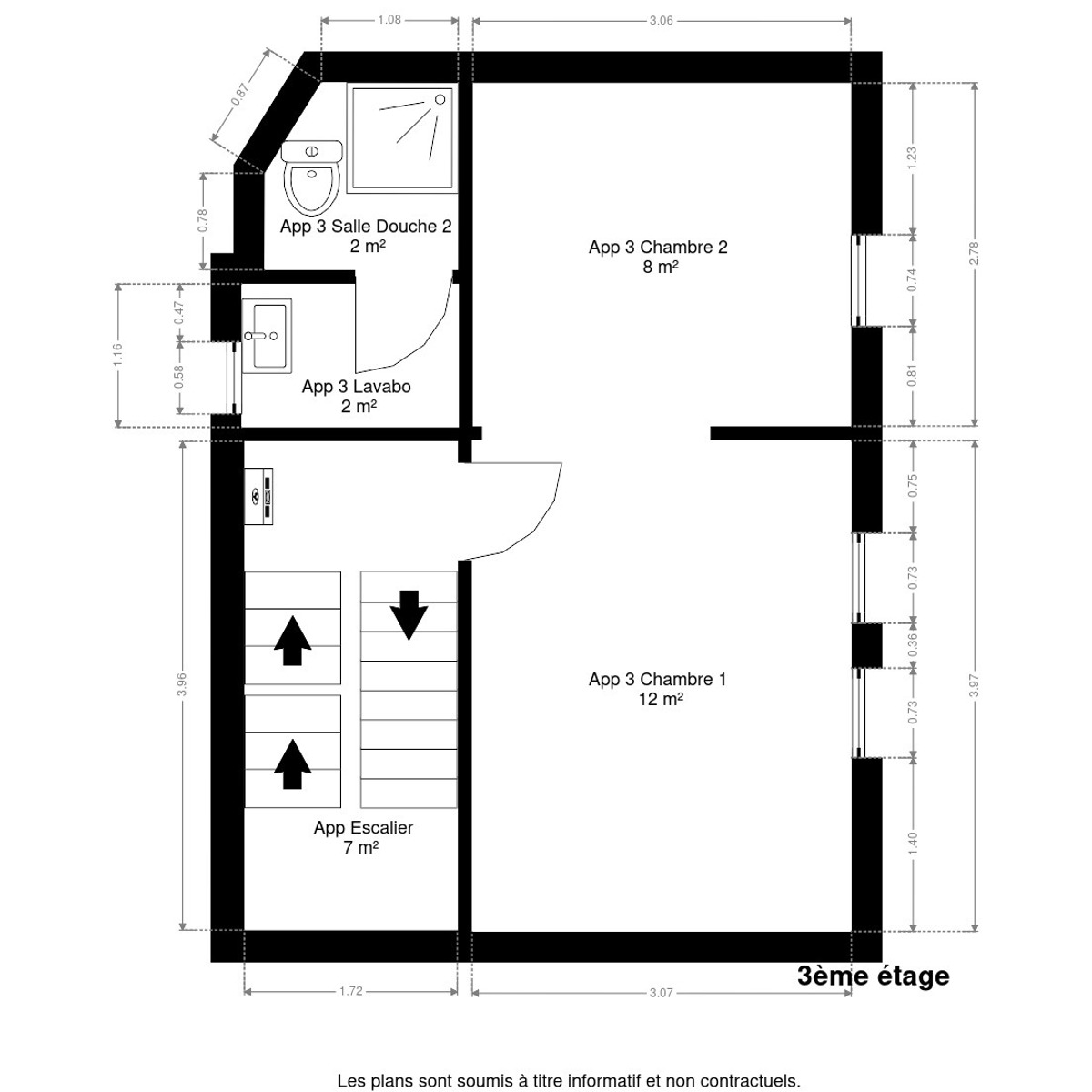
L'immeuble se compose au rez-de-chaussée d'un appartement avec un séjour et cuisine ouverte, salle de douche dans la chambre à coucher; au 1er étage un appartement 1 chambre de 12m², une cuisine ainsi que une salle de douche. Aux 2è et 3è étages ce trouve le duplex, composé de 2 chambres et d'une salle de douche au 3ième, d'un living et d'une cuisine avec une seconde salle de douche au 2è étage.
Loyers :
Rez-de-chaussée : 425 euros
1er étage : 395 euros
2ième et 3ième étage : 390 euros
Techniques : électricité conforme valable jusqu'en 2038, attestation gaz, châssis double vitrage. Permis d'habitation pour les petits logements (rez-de-chaussée et premier étage) à renouveler tous les 5 ans.
PEB : rez-de-chaussée classe E n°20190310006786 E.spec : 422 kWh/m².an E.Totale : 13 142 kWh/an
PEB 1er étage classe D n°20190310007032 E.spec : 264 kWh/m².an E.totale : 8738 kWh/an
PEB 2 et 3ième étage : classe D n°20190310007237 E.spec : 296 kWh/m².an E.Totale : 19 587 kWh/an
Livret descriptif et informations complémentaires via info@ekilibre.be ou au 087.31.63.00
Meublé
Surface habitable
125m2
État
À rénover
Égouts
Oui
Electricité
Oui
Accès à l'eau
Oui
Surface totale
125 m2
Surface séjour
12.19 m2
Surface chambre 1
12.19 m2
Surface chambre 2
8.49 m2
Nombre de chambre(s)
4
Nombre de buanderie(s)
3
Nombre d'étages
4
Jardin
Non
PEB
PEB n°20190310007032 - Classe D - E.spec : 264 kWh/m².an - E.Totale : 8738 kWh/an
Type de chauffage
gaz
Panneaux solaires
Non
Conformité électrique
oui, conforme
Prix
150.000 €
Sous régime TVA
Non
Frais de notaire
Durée : 20
Taux d'intérêt : 5%
Mensualité estimée : 0 €/mois
Maison
Localisation
Pourquoi nous faire confiance
Que vous vendiez, achetiez ou investissiez, notre équipe met tout en œuvre pour vous offrir un accompagnement professionnel, humain et adapté à votre situation.
Vous bénéficiez d’une estimation précise et fiable, grâce à notre parfaite connaissance du marché verviétois et notre méthode d’évaluation exclusive.
Nous prenons en charge chaque étape de votre vente avec rigueur et transparence, en collaboration avec des notaires, pour vous assurer une transaction en toute sérénité.
Votre bien mérite le meilleur : photos pro, vidéos drone, home staging et une visibilité maximale pour séduire rapidement les acheteurs.
Suivez en temps réel chaque visite et retour grâce à votre espace propriétaire. Ici, pas de OFF Market : votre bien est visible par tous pour obtenir la meilleure offre.
Foire aux questions
Regard sur l'immobilier
Suivez toute l’actualité immobilière avec Ekilibre : prix du marché, nouvelles lois, conseils pour vendre, acheter ou investir, tendances locales et solutions de financement.