Maison

Verviers

Laoureux, 39-41
4800 Verviers

àpd 349.000€ *

Simuler mon financement Faire une offre de prix

*Le prix affiché ne contraint pas le vendeur à accepter votre offre.

  • Icône surface

    Surface

    353 m2

  • Icône chambres

    Chambres

    9

  • Icône salle de bain

    Salle de bain

    4

  • Icône extérieur

    Extérieur

    Terrasse

  • Icône parking

    Parking

    Oui

  • Icône garage

    Garage

    Oui

Descriptif

Ekilibre a le plaisir de vous présenter un immeuble de rapport (4 appartements) rue Laoureux n°39-41 à 4800 verviers.
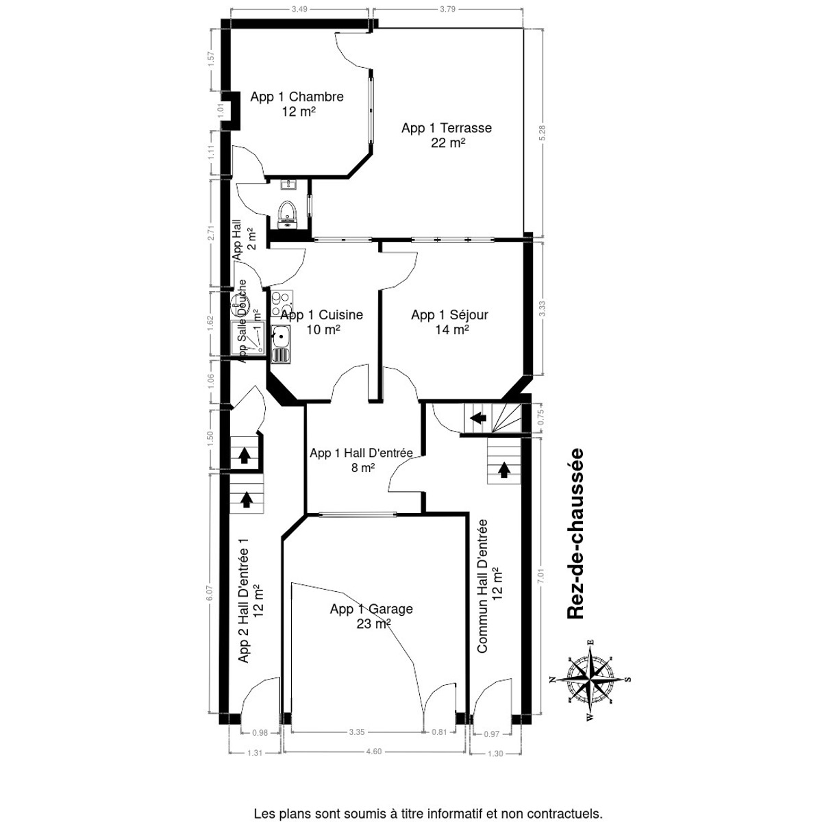
Composition : rez-de-chaussée : appartement 1 chambre bénéficiant d'une cour privative. 1er étage : appartement 3 chambres. 2ième étage : appartement 2 chambres avec terrasse. 3ième étage : appartement 3 chambres + grenier.
Caves au sous-sol. Garage loué avec l'appartement du 1ier étage.
Techniques : électricité conforme, châssis PVC double vitrage 2005 - 2006 - 2011, restauration toiture en 2016, 4 chaudières gaz à condensation, un seul compteur d'eau avec des décompteurs, 4 compteurs gaz, 4 compteurs élec. Pas aux normes incendies !
PEB :
Rez-de-chaussée classe D n°20180615002764 E.spec : 273 kWh/m².an E.Totale : 13 918 kWh/an
Premier étage : classe D n°20160512010805 E.spec : 278 kWh/m²/an E.Totale : 21 225 kWh/an
Deuxième étage : classe B n°20170818006045 E.spec :167 kWh/m².an E.Totale : 12 764 kWh/an
Troisème étage : classe B n°20221102006619 E.spec : 113 kWh/m².an E.totale : 9493 kWh/an
Loyers :
Rez-de-chaussée 495 euros/mois + 30 euros (eau) + 5 euros (entretient chaudière) + 6 euros (elec hall)
1er étage : 600 euros/mois + 60 euros (eau) + 4 euros (entretient chaudière)
2ième étage : 550 euros/mois + 30 euros (eau) + 4 euros (entretient chaudière)
3ième étage : 525 euros/mois + 45 euros (eau) + 4 euros (entretient chaudière) + 6 euros ( elec hall)
Revenu cadastral : 1524 euros
PLANS et livret descriptif via info@ekilibre.be

Informations générales

  • Meublé

  • Surface habitable

    353m2

  • État

    Bon état

  • Buanderie

    Oui

  • Double Vitrage

    Oui

  • Égouts

    Oui

  • Electricité

    Oui

  • Gaz

    Oui

  • Accès à l'eau

    Oui

Surfaces

  • Surface totale

    353 m2

  • Surface séjour

    13.93 m2

  • Surface cuisine

    10.54 m2

  • Surface salle de bain

    5.25 m2

  • Surface chambre 1

    13.7 m2

  • Surface chambre 2

    14.31 m2

  • Surface chambre 3

    9.19 m2

  • Surface toilette

    8.81 m2

  • Surface de(s) cave(s)

    60.62 m2

Intérieur

  • Nombre de chambre(s)

    9

  • Nombre de salle(s) de bain

    4

  • Nombre de buanderie(s)

    2

  • Nombre de garage(s)

    1

  • Nombre de cave(s)

    1

Extérieur

  • Nombre d'étages

    4

  • Terrasse

    2

  • Garage

    1

  • Parking

    1

  • Jardin

    Non

  • Surface terrase

    16 m2

Énergie

  • PEB

    PEB n°2017081800604 - Classe B - E.spec : 167 kWh/m².an - E.Totale : 12764 kWh/an

  • Type de chauffage

    gaz

  • Panneaux solaires

    Non

  • Conformité électrique

    oui, conforme

Infos financières

  • Prix

    349.000 €

  • Revenu cadastral

    1524 €

  • Sous régime TVA

    Non

  • Disponibilité

    en fonct. du locataire

  • Frais de notaire

    notaire.be

Maëva Schweyen

Agent immobilier agréé

IPI 514.110

Ce bien vous intéresse ?

Maëva se fera un plaisir de vous le faire visiter !

Simulation de votre crédit hypothécaire

5%
250000 €

Récapitulatif

Durée : 20

Taux d'intérêt : 5%

Mensualité estimée : 0 €/mois

Pourquoi nous faire confiance

Votre projet entre des mains expertes

Que vous vendiez, achetiez ou investissiez, notre équipe met tout en œuvre pour vous offrir un accompagnement professionnel, humain et adapté à votre situation.

  • Illustration de l'élément

    Une expertise locale inégalée

    Vous bénéficiez d’une estimation précise et fiable, grâce à notre parfaite connaissance du marché verviétois et notre méthode d’évaluation exclusive.

  • Illustration de l'élément

    Un accompagnement sur-mesure

    Nous prenons en charge chaque étape de votre vente avec rigueur et transparence, en collaboration avec des notaires, pour vous assurer une transaction en toute sérénité.

  • Illustration de l'élément

    Une mise en valeur optimale

    Votre bien mérite le meilleur : photos pro, vidéos drone, home staging et une visibilité maximale pour séduire rapidement les acheteurs.

  • Illustration de l'élément

    Une transparence totale

    Suivez en temps réel chaque visite et retour grâce à votre espace propriétaire. Ici, pas de OFF Market : votre bien est visible par tous pour obtenir la meilleure offre.

Foire aux questions

Tout savoir avant de vous lancer

  • Le certificat PEB est-il obligatoire pour acheter un bien ?

    Oui, le certificat de performance énergétique du bâtiment (PEB) est obligatoire pour toute vente. Il vous informe sur la consommation énergétique du bien et peut influencer vos décisions de rénovation ou vos frais futurs.
  • Quels sont les frais à prévoir lors de l’achat d’un bien immobilier ?

    En plus du prix d’achat, vous devez prévoir : -Les droits d’enregistrement (ou TVA pour un bien neuf) -Les frais de notaire -Les frais de crédit hypothécaire (frais de dossier, acte de prêt) -Les travaux éventuels si le bien n’est pas conforme (électricité, PEB…)
  • Quelles sont les étapes pour acheter un bien immobilier ?

    Nos experts en immobilier vous accompagnent à chacune de ces étapes : 1. Rechercher un bien correspondant à vos critères 2. Visiter et poser les bonnes questions 3. Faire une offre d’achat écrite 4. Signer le compromis de vente 5. Obtenir le crédit 6. Passer chez le notaire pour l’acte authentique

Regard sur l'immobilier

Acheter, vendre, investir : on vous guide

Suivez toute l’actualité immobilière avec Ekilibre : prix du marché, nouvelles lois, conseils pour vendre, acheter ou investir, tendances locales et solutions de financement.

  • Publié le 17 février 2026

    Comment vendre un bien en indivision en Belgique ?

    Rédigé par Nathalie Palm Administrateur
    Icône bouton
  • Publié le 17 février 2026

    Le PEB, certificat obligatoire pour vendre un bien immobilier ?

    Rédigé par Nathalie Palm Administrateur
    Icône bouton
  • Nathalie Palm de l'agence ekilibre à Verviers
    Publié le 31 octobre 2025

    Nouvel impôt sur les plus-values : quel impact sur la vente d’un bien immobilier ?

    Rédigé par Nathalie Palm Administrateur
    Icône bouton
  • Publié le 17 octobre 2025

    Comment mettre en valeur sa maison pour vendre au meilleur prix en 2025 ?

    Rédigé par Nathalie Palm Administrateur
    Icône bouton
  • Mis à jour le 26 août 2025

    De quels documents avez-vous besoin pour vendre votre maison en Wallonie en 2025 ?

    Rédigé par Nathalie Palm Administrateur
    Icône bouton
  • Mis à jour le 13 août 2025

    5 astuces pour vendre rapidement sa maison

    Rédigé par Nathalie Palm Administrateur
    Icône bouton