Maison

Verviers

Rue Pierre Fanchamps, 37
4800 Verviers

340.000 €

Simuler mon financement

*Le prix affiché ne contraint pas le vendeur à accepter votre offre.

  • Icône surface

    Surface

    292 m2

  • Icône chambres

    Chambres

    7

  • Icône salle de bain

    Salle de bain

    3

  • Icône parking

    Parking

    Non

  • Icône garage

    Garage

    Non

Descriptif

Ekilibre a le plaisir de vous proposer un immeuble de rapport entièrement rénové composé de trois appartements, en ordre urbanistique, aux normes pompiers situé rue Pierre Fanchamps n°37 à 4800 Verviers ! Libre de tout occupant, cet immeuble n'attend plus que vous pour l'exploiter, un rendement de plus de 2150 euros/mois est possible dès la mise en place des locataires.
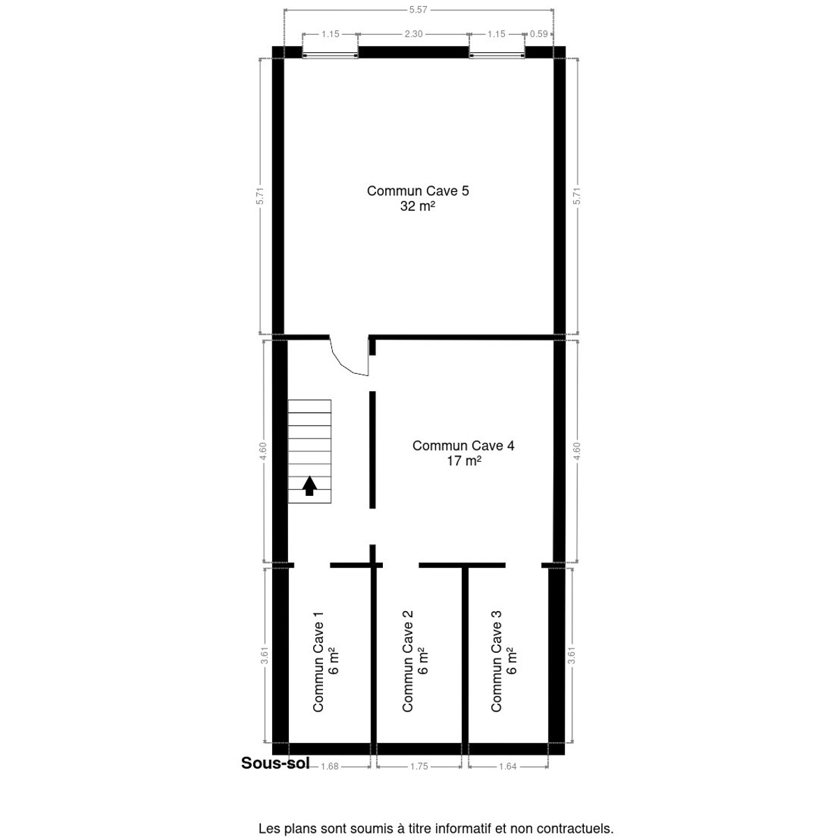
Caves au sous-sol
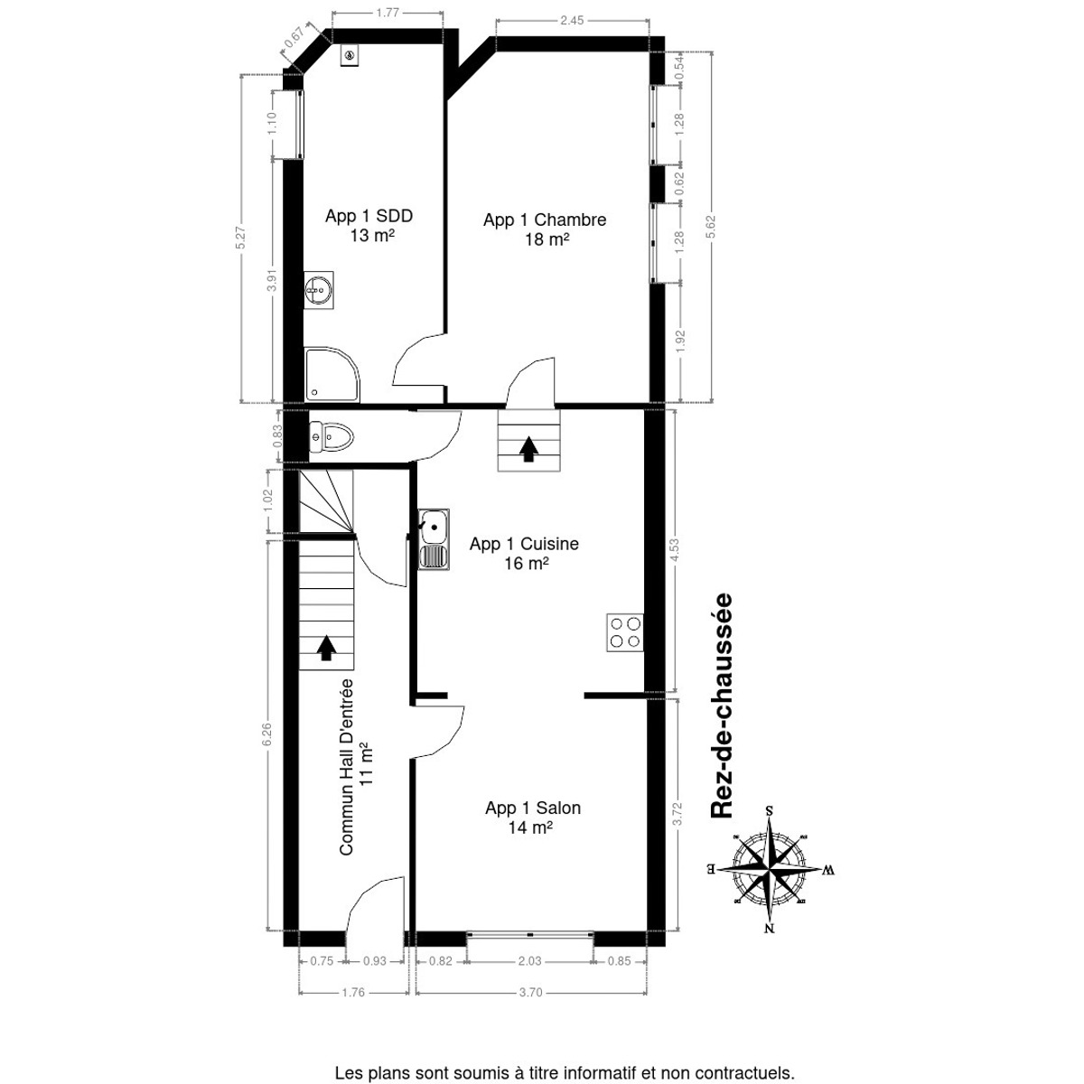
Composition : appartement 1 chambre au rez-de-chaussée de 61 m² comprenant une cuisine équipée.
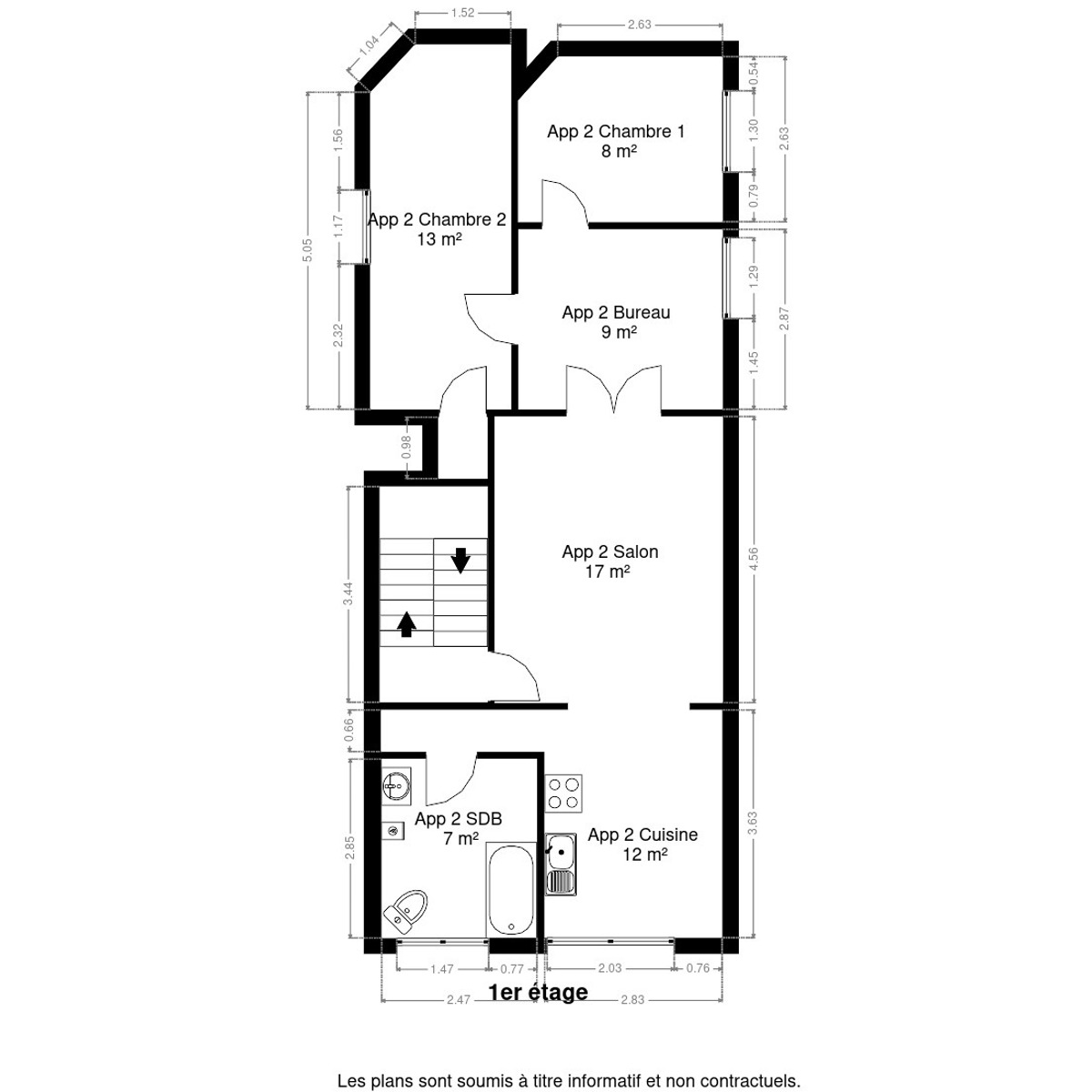
1er étage : appartement 2 chambres de 66 m² comprenant une cuisine équipée.
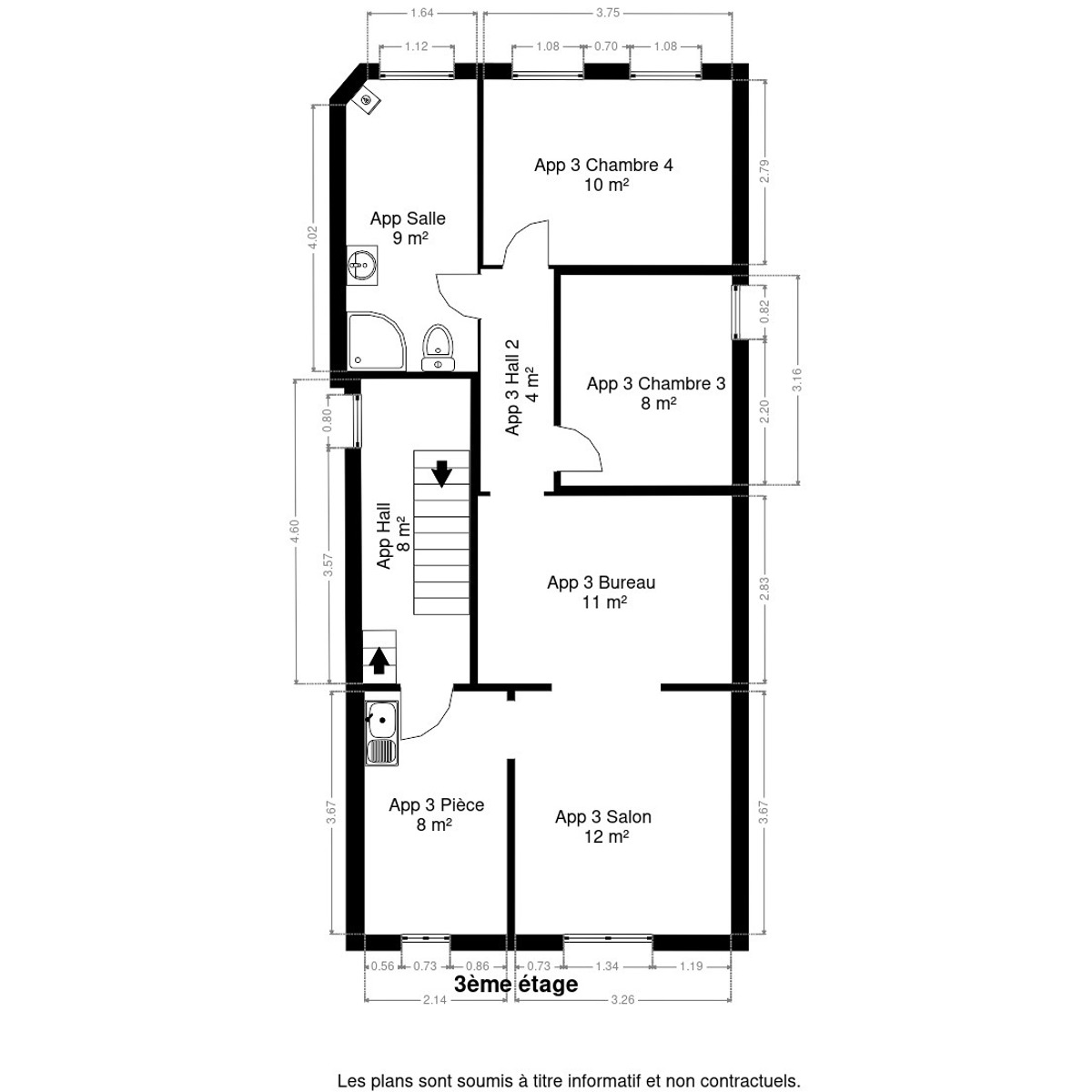
2ième et 3ième étage: duplex 4 chambres de 126m² comprenant une cuisine équipée. Grenier.
PEB rez-de-chaussée classe C n°20251019002014 E.Total: 16 304 kWh/an E.spec : 221 kWh/m².an
PEB premier étage classe B n°20251019002178 E.Total : 12 387 kWh/an E.spec : 155 kWh/m².an
PEB deuxième et troisème étage classe C n°20251015000774 E.Total : 28 801 kWh/m².an E.spec : 174 kWh/m².an
Techniques : châssis double vitrage,conformité gaz, chaudière de 2024-2025-2022, conformité électrique, toiture isolée, tuiles de 2022 sur le versant arrière. Plate-forme de 2015. raccordement aux égouts. 4 compteurs électriques, 3 compteurs gaz et un compteur d'eau.
Revenu cadastral net : 867 euros
Livret descriptif et informations complémentaires via info@ekilibre.be ou au 087/31.63.00

Informations générales

  • Meublé

  • Surface habitable

    292m2

  • État

    Excellent état

  • Buanderie

    Oui

  • Bureau

    Oui

  • Double Vitrage

    Oui

  • Égouts

    Oui

  • Electricité

    Oui

  • Accès à l'eau

    Oui

Surfaces

  • Surface totale

    292 m2

  • Surface séjour

    22.59 m2

  • Surface cuisine

    16.4 m2

  • Surface salle de bain

    12.73 m2

  • Surface chambre 1

    17.87 m2

  • Surface chambre 2

    12.74 m2

  • Surface chambre 3

    8.15 m2

  • Surface chambre 4

    10.46 m2

  • Surface toilette

    8.98 m2

  • Surface de(s) cave(s)

    66.99 m2

Intérieur

  • Nombre de chambre(s)

    7

  • Nombre de salle(s) de bain

    3

  • Nombre de cave(s)

    1

Extérieur

  • Nombre d'étages

    6

  • Surface bâtie

    90 m2

  • Jardin

    Non

Énergie

  • PEB

    PEB n°20251019002178 - Classe B - E.spec : 155 kWh/m².an - E.Totale : 12387 kWh/an

  • Type de chauffage

    gaz

  • Panneaux solaires

    Non

  • Conformité électrique

    oui, conforme

Infos financières

  • Prix

    340.000 €

  • Sous régime TVA

    Non

  • Disponibilité

    à l'acte

  • Frais de notaire

    notaire.be

Maëva Schweyen

Agent immobilier agréé

IPI 514.110

Ce bien vous intéresse ?

Maëva se fera un plaisir de vous le faire visiter !

Simulation de votre crédit hypothécaire

5%
250000 €

Récapitulatif

Durée : 20

Taux d'intérêt : 5%

Mensualité estimée : 0 €/mois

Pourquoi nous faire confiance

Votre projet entre des mains expertes

Que vous vendiez, achetiez ou investissiez, notre équipe met tout en œuvre pour vous offrir un accompagnement professionnel, humain et adapté à votre situation.

  • Illustration de l'élément

    Une expertise locale inégalée

    Vous bénéficiez d’une estimation précise et fiable, grâce à notre parfaite connaissance du marché verviétois et notre méthode d’évaluation exclusive.

  • Illustration de l'élément

    Un accompagnement sur-mesure

    Nous prenons en charge chaque étape de votre vente avec rigueur et transparence, en collaboration avec des notaires, pour vous assurer une transaction en toute sérénité.

  • Illustration de l'élément

    Une mise en valeur optimale

    Votre bien mérite le meilleur : photos pro, vidéos drone, home staging et une visibilité maximale pour séduire rapidement les acheteurs.

  • Illustration de l'élément

    Une transparence totale

    Suivez en temps réel chaque visite et retour grâce à votre espace propriétaire. Ici, pas de OFF Market : votre bien est visible par tous pour obtenir la meilleure offre.

Foire aux questions

Tout savoir avant de vous lancer

  • Le certificat PEB est-il obligatoire pour acheter un bien ?

    Oui, le certificat de performance énergétique du bâtiment (PEB) est obligatoire pour toute vente. Il vous informe sur la consommation énergétique du bien et peut influencer vos décisions de rénovation ou vos frais futurs.
  • Quels sont les frais à prévoir lors de l’achat d’un bien immobilier ?

    En plus du prix d’achat, vous devez prévoir : -Les droits d’enregistrement (ou TVA pour un bien neuf) -Les frais de notaire -Les frais de crédit hypothécaire (frais de dossier, acte de prêt) -Les travaux éventuels si le bien n’est pas conforme (électricité, PEB…)
  • Quelles sont les étapes pour acheter un bien immobilier ?

    Nos experts en immobilier vous accompagnent à chacune de ces étapes : 1. Rechercher un bien correspondant à vos critères 2. Visiter et poser les bonnes questions 3. Faire une offre d’achat écrite 4. Signer le compromis de vente 5. Obtenir le crédit 6. Passer chez le notaire pour l’acte authentique

Regard sur l'immobilier

Acheter, vendre, investir : on vous guide

Suivez toute l’actualité immobilière avec Ekilibre : prix du marché, nouvelles lois, conseils pour vendre, acheter ou investir, tendances locales et solutions de financement.

  • Nathalie Palm de l'agence ekilibre à Verviers
    Publié le 31 octobre 2025

    Nouvel impôt sur les plus-values : quel impact sur la vente d’un bien immobilier ?

    Rédigé par Nathalie Palm Administrateur
    Icône bouton
  • Publié le 17 octobre 2025

    Comment mettre en valeur sa maison pour vendre au meilleur prix en 2025 ?

    Rédigé par Nathalie Palm Administrateur
    Icône bouton
  • Mis à jour le 26 août 2025

    De quels documents avez-vous besoin pour vendre votre maison en Wallonie en 2025 ?

    Rédigé par Nathalie Palm Administrateur
    Icône bouton
  • Mis à jour le 13 août 2025

    5 astuces pour vendre rapidement sa maison

    Rédigé par Nathalie Palm Administrateur
    Icône bouton